產品分類一覽
系統(tǒng)工程:
自動配料系統(tǒng)
氣力輸送系統(tǒng)
負壓氣力輸送系統(tǒng)
- 負壓氣力輸送系統(tǒng)
- 所屬類目:負壓氣力輸送
- 產品亮點:
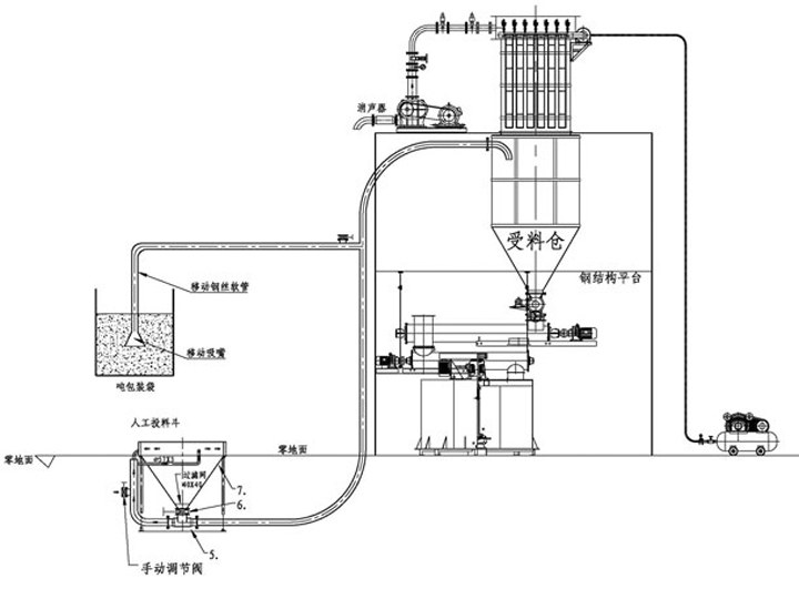
負壓氣力輸送系統(tǒng)基本原理
負壓氣力輸送系統(tǒng)就是其輸送的時整個管道壓力低于當地氣壓的輸送系統(tǒng),壓吸送式氣流輸送是整個氣流輸送最早實際運用、最可靠、最成熟的輸送方式。根據工作壓強不同可以分為低真空(真空度小于1000mm水柱)和高真空(真空度大于1000mm水柱)兩種形式。
負壓氣力輸送系統(tǒng)基本原理
負壓氣力輸送一般用羅茨真空泵作動力源,將管路及罐式倉抽成一定的真空狀態(tài),促成進風口在大氣壓的作用下形成物料粉粒料與氣體的兩相流,經輸送管道輸入旋風分離器。兩相流在旋風分離器內由于離心力及重力作用下,使大部分物料與氣體分離。少量的物料與氣體進入除塵器,通過濾袋作用使粉料與氣體分離,氣體排入大氣。

負壓氣力輸送系統(tǒng)特點
1.有最可靠的密閉性,管路內的粉塵不會泄漏于環(huán)境;
2.設備的制造、維護要求低,工人的可操作性強;
3.使用的壓力(真空度)小,安全性高;
4.輸送物料量大,輸送距離遠,輸送物料線路不受地形限制
5.輸送為連續(xù)式、亦可間斷,管道內無積存;
6.可以多點進料和多點卸料;
7.采用離心風機、羅茨風機為氣體動力源,使用壽命長;
8.對輸送物料的適應性強,粉料、顆粒料均可順利輸送。
上一篇:正壓氣力輸送系統(tǒng)
下一篇:密相氣力輸送系統(tǒng)
