負壓的計算方式是什么,今天為大家分享負壓的計算方式,希望對大家有所幫助 
· 混合比
混合比系指在單位時間內輸送的原料質量與同一時間內通過該管道的空氣質量之比,用m表示。m值的選定受著風機性能、特性、輸送條件等多方面因素的制約,它是一個涉及輸送裝置經濟性和工作可靠性的重要參數,在設計時宜綜合各種有關因素慎重選定。
實際上,m值往往需經反復試算和調整才能最后確定。一般低真空吸送裝置使用的m值范圍在1~8之間,我們一般取m=5.5。
· 輸送空氣速度
通常每種物料都存在一個能保證顆粒呈懸浮狀態正常輸送的最低風速,稱為安全輸送空氣速度或經濟速度,用va表示。
如選取的輸送速度比安全速度高得多,則裝置雖然能安全的輸送物料,但系統產生的壓力損失太高,功率消耗增大,并且還會加劇管系(如彎管及其連接的水平管底壁磨損),引起物料的破碎。反之,如選取的速度低于安全速度,則容易形成脈動流,此時壓力損失也會急劇增高,而且管 道極易發生堵塞,導致系統不能正常使用,在實際工程計算中,我們一般取va=18m/s。
對于大約90%的氣流輸送,25m/s的氣流速度是足夠的。對物料不超過880kg/m3和顆粒體積不大于2.0cm3時,上表中氣流速度是可用的。物料大于880kg/m3,但小于1360kg/m3時,上表中氣流速度增加5m/s;對于密度在1360 kg/m3-1840 kg/m3時,上表中氣流速度增加10m/s;物料大于1840kg/m3和顆粒體積大于2.0cm3時,氣流速度應由實驗測定。
· 空氣流量
輸料管起始段輸送物料所需的空氣流量Qa(m3/min)可以按下式計算:
Qa=(G/60)/m/γai [2-1]
其中: G—— 輸送原料重量 (kg/h)
m—— 混合比
γai—— 標準狀態下的空氣比重(1.2 kg/m3)混合比
· 輸送料管管內徑
輸送料管管內徑Dai可以按下式計算:
Dai= [2-2]
其中: Qa——空氣流量(m3/min)
m—— 混合比
va——空氣輸送速度(m/s)
· 空氣管壓損
空氣管壓損ΔPai可以按下式計算:
ΔPai=λai×(Lai/Dai)×(γai/2/g)×va2 [2-3]
其中:λai——管摩擦系數,取0.03
Lai ——空氣管長(m)
Dai——空氣管內徑(mm)
γai——標準狀態下的空氣比重(1.2 kg/m3)
va——空氣輸送速度(m/s)
注:λai=K(0.0125+0.0011/ Dai) 其中:光滑管K=1.0,焊接管K=1.3 舊焊接 K=1.6
· 加速損失
原料在輸送的初速度可視為0,借輸送空氣之加速到一定速度所產生的壓力損失大致可用下式表示:
ΔPac=(c+m)×(γai/2/g)×va2 [2-4]
其中:c——常數,約1~10,一般取c=3
m—— 混合比
γai——標準狀態下的空氣比重(1.2 kg/m3)
va——空氣輸送速度(m/s)
注:C是取決于粉粒體供給方法的常數,約1~10,連續穩定供料取小值,間斷或從吸嘴供料取大值。
· 輸送管相當長度
為了計算輸送管中的壓力損失,先將傾斜管、鉛垂管及彎頭換算為相當長度的水平直管,可表示如下:
Leq=Lh+kθ×Lθ+kv×Lv+n×N×Dai [2-5]
其中:Leq—— 輸送管相當長度
Lh—— 水平管長度
kθ—— 斜長管換算系數,由實驗決定
Lθ—— 斜管長度
kv—— 垂直管換算系數,由實驗決定, 一般取kv=1.5
Lv—— 垂直管長度
n—— 彎管數
N—— 彎管換算系數,由實驗決定, 一般取N=100
Dai—— 輸送料管管內徑Dai
· 輸送管中的壓力損失ΔPm
原料輸送在直管部分的壓力損失ΔPm是對只流空氣時的壓力損失ΔPa乘上實驗求得的系數α(壓力損失比),即:
ΔPa=λa×(Leq/Dai/2/g)×va2×γai [2-6]
ΔPm=α×ΔPa=(1+βm)×ΔPa [2-7]
α及β值取決于原料的物理性質、輸送管的內徑、輸送空氣速度等,在同一條件下,α值略正比于混合比m,一般取β=0.45,λa=0.1555(假設值)。
· 除塵裝置的壓力損失ΔPsep
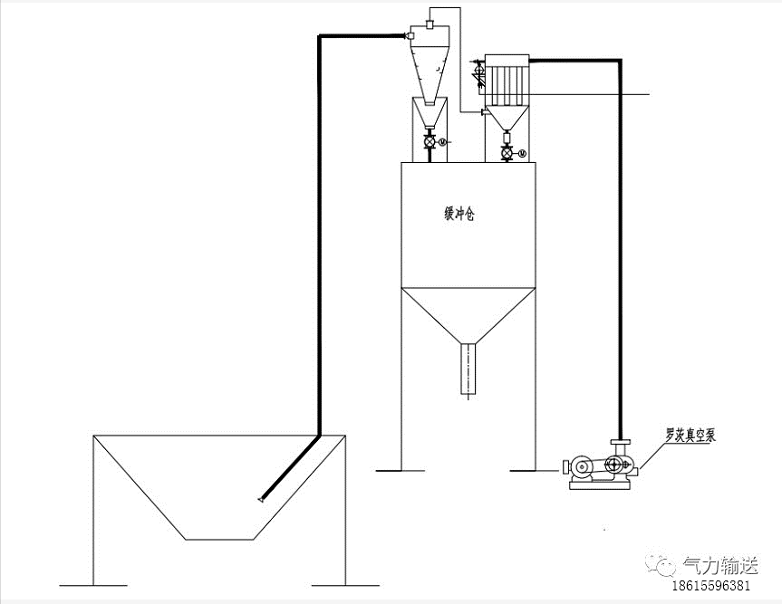
除塵裝置的壓力損失值取決于除塵裝置的種類和構造,在中央集中輸送系統中,若輸送原料中含有較多粉塵,則需要加裝旋風除塵器,旋風除塵器壓損一般在1000~2000Pa,工程計算時取1500Pa。
在輸送系統末端,目前采用木質纖維過濾器為核心的除塵過濾裝置,壓力損失一般取4000-7000Pa。
· 高壓真空風機真空度P(真空風機的余裕風量為5%,壓力為10%)
高壓真空風機最大吸引真空度P必須大于系統壓力總損失ΔP值。
P>ΔP=ΔPai+ΔPac+ΔPm+ΔPsep [2-8]
[例] 試求PVC顆粒以300kg/h的輸送量在水平80m,垂直5m,5個90°彎頭的管路中輸送時的空氣壓力及風量。
設混合比m=5.5,空氣比重γai=1.2kg/m3,輸送空氣速度va=18m/s,由式(2-1)得Qa=(G/60)/m/γai =0.76m3/min,由式(2-2)得Dai==0.03m,考慮長距離輸送,為了安全起見,故選用外徑為50.8mm(2.0”SUS201)管,取管壁厚1.2mm,此時Qa=1.986m3/min。設kv=1.5,n=5,N=100,由式(2-5)得Leq=Lh+kθ×Lθ+kv×Lv+n×N×Dai=89.92m≒90m。
假設空氣管長度及管徑與輸送管一致,則空氣管的壓力損失由式(2-3)得 ΔPai=λai×(Lai/Dai)×(γai/2/g)×va2=1106mmaq;加速損失由式(2-4)得 ΔPac=(c+m)×(γai/2/g)×va2=254mmaq;輸送管中的壓力損失由式(2-7)得ΔPm=(1+βm)×λa×(Leq/Dai/2/g)×va2×γai =2051mmaq;設除塵裝置總壓ΔPsep得700mmaq。則合計壓力損失由式(2-8)得 ΔP=1106+254+2051+700=4111mmaq。真空風機的余裕風量為5%,壓力為10%,則Qa=2.085m3/min,P=4522 mmaq。
馬達功率(KW)=(P×Qa)/(60×100×η)=(2.085×4522)/(60×100×0.6)=2.6KW (設η=0.6)
上一篇:總面積算氣力輸送流體的空氣流量
下一篇:正壓稀相氣力輸送系統詳解
