產品分類一覽
如何設計一套貼合客戶需求氣力輸送系統?
如何設計一套貼合客戶需求系統?
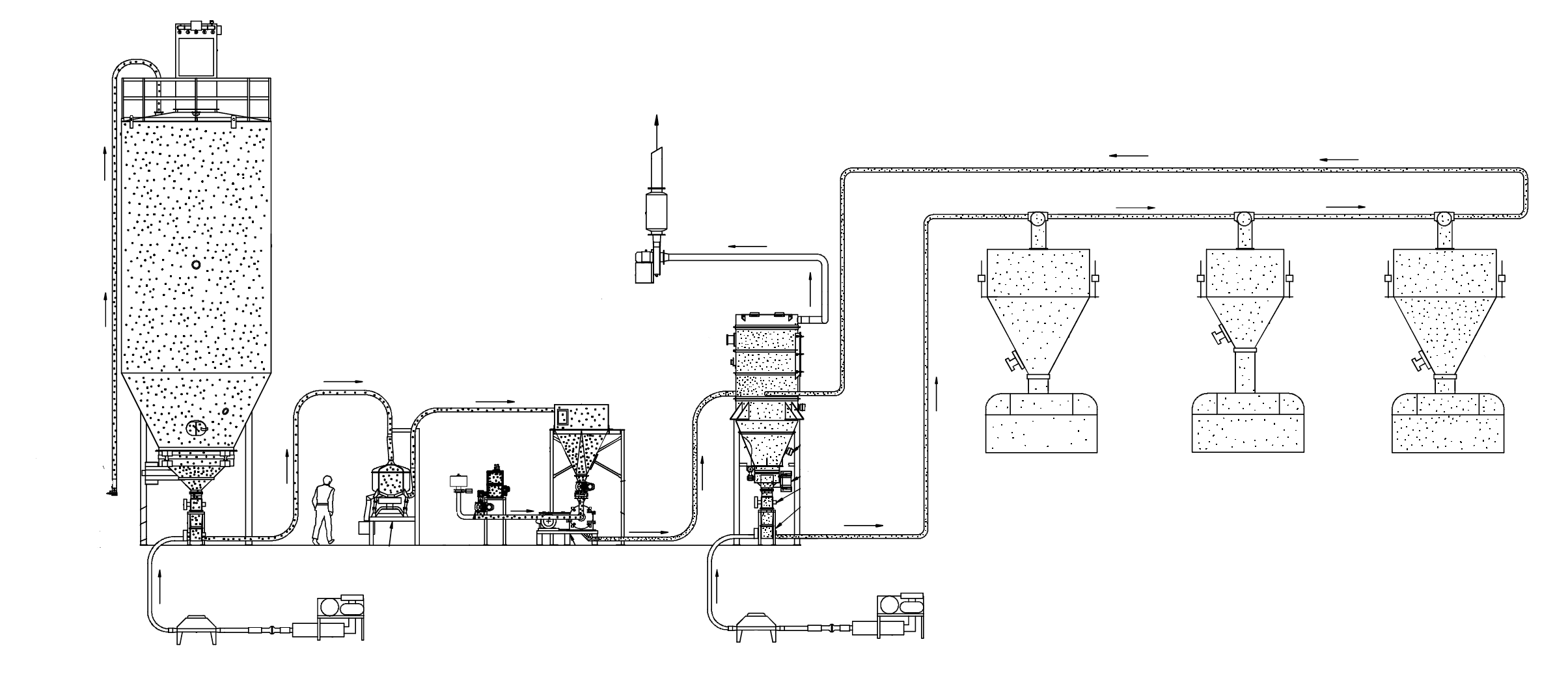
設計一套一定不簡單,學校教學講究因材施教,國家建設講究因地制宜,一套氣力輸送的設計需求的因素更是很多,但是總結起來最直觀的是三個重要的因素:距離,效率與密度
像計劃一次自駕游一樣,為了開始掌握最佳路線,你必須回答幾個問題:
1)我要走多遠?(距離)
2)需要多長時間/到達那里需要多快?(率)
3)有多少人要去?(體積/密度參數)
在設計氣力輸送系統時,這些因素也同樣重要,怎么設計氣力輸送與自駕游其實是大同小異的:如果您沿著街區自行前往公園,您可以步行。如果同一個公園距離酒店有兩英里,您可能想騎自行車。從四川到西藏您可能需要一輛suv出國的話您只能用飛機了
在氣力輸送方面,距離是首要考慮因素。一定要記住,在計算距離時,需要計算整套氣力輸送系統的總距離。這里面包括:水平距離,垂直距離以及彎曲,彎頭或方向變化的數量。如果您需要從A點的材料輸送到100米以外的料倉,那么當您到達那里時,記住料倉高度多高也很重要。
此外,過程中可能會遇到其他障礙物,或者工藝的特殊要求,您的管道可能需要距離140米,并采取三個彎頭到達那里,而不是最佳的100米直線距離。
費率也需要密切定義。就我們的旅行情況而言,如果你要三天內從上海到北京,那么您可以有充足的時間里開車并沿途觀看景點。但是,如果你只有半天的時間,你只能乘坐飛機才能到達。同樣,打個一些公司每天可以生產24噸材料。但是,這種材料是在24小時(每小時1噸),還是在8小時(每小時3噸)中生產,這對于正確的系統設計所需的速率來說是一個很大的不同。
最后,根據有多少人來說,運輸本身很重要。一對夫妻可以輕松享受雙座敞篷車的公路旅行,但如果你帶著兩個孩子一起旅行,你就得開一輛最少四座的車了。就氣力輸送系統而言,每立方米的粉塵與金屬又是兩個不同的概念。

稀相輸送或密相輸送
氣動輸送的還要考慮因素是選擇是設計稀相系統還是密相系統。氣動輸送是指用空氣移動干燥的散裝。你可以通過空氣速度和動力輸送很多類型的。問題是,在完成輸送之后移動的材料是什么樣的形狀?稀相輸送是指將物料懸浮在氣流中并相對快速地將它們從A點移動到B點。由于產品與管道的摩擦較小,產品懸浮在氣流中,因此速度很快,抵消摩擦所需的壓力很低。
密相系統使產品相對緩慢地移動并使產品滑過管道,通常以波浪形式。這需要較低的速度和較高的壓力。
據在行業內的研究表明,大多數氣力輸送系統(80%對20%)是稀相而不是密相,因為比較便宜而且維護方便。一般是使用代替壓縮機來作為用來控制材料與空氣的比率。但是當材料易碎或當具有高度磨蝕性時盡量不要考慮。
因為稀相氣力輸送系統在高速下運行并且快速運輸材料,易碎產品在運輸中往往更容易損壞。如果您將產品制成顆粒,薄片或形狀,并希望產品保持這種形狀,是不適合稀相氣力輸送的。
相對于稀相氣力輸送,密相氣力輸送的因為采用慢速輸送可以完美的解決物料破碎問題。

